4000-997-220

产品展示

博亚照明

重点开展智慧城市建设中的智慧照明,光伏产品,新能源汽车充电装置等关键技术的研究和相关产品的研发

※ 您的当前所在位置:网站首页 - 产品展示 - 智慧灯杆
prev
next

BY-DGHY-001

更新时间:2025-08-20

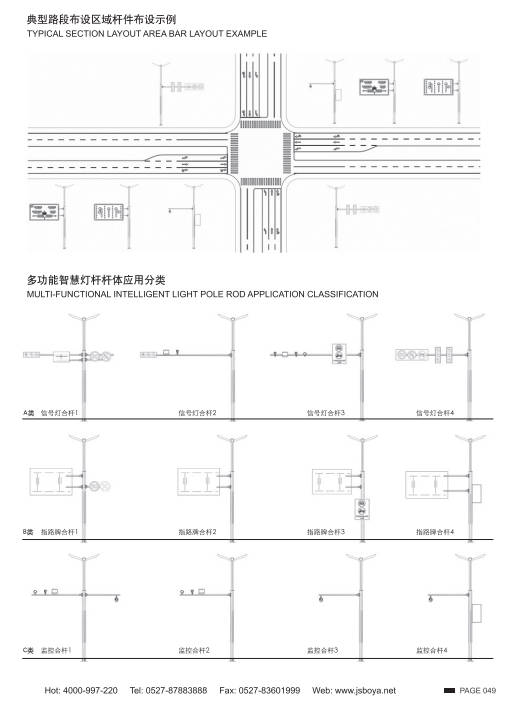
多杆合一又名综合杆,是一种集路灯杆、交通信号灯、交通标专牌及智慧灯杆设备等设施于一身的道路交通设施,其目的是为了解决路口杆件林立,提升城市市容景观,集约化发展,共享杆体。



  • 产品详情

多杆合一又名综合杆,是一种集路灯杆、交通信号灯、交通标专牌及智慧灯杆设备等设施于一身的道路交通设施,其目的是为了解决路口杆件林立,提升城市市容景观,集约化发展,共享杆体。


您可能感兴趣的新闻 POPULAR INFORMATION